





























































120 Edinborough Court
Rockcliffe-Smythe, Toronto W03
$1,130,000
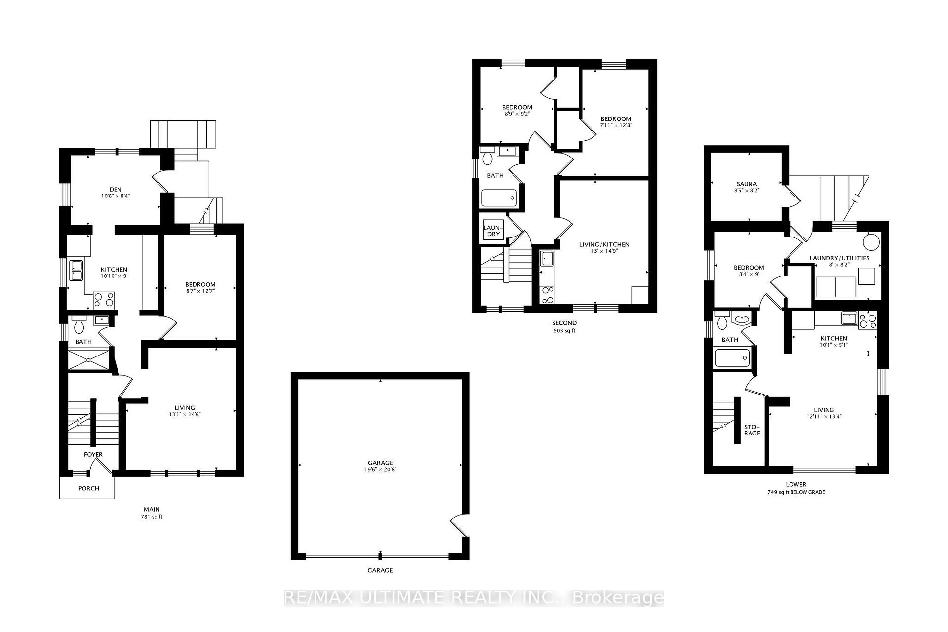
Incredible Investment Opportunity! Detached Home on a Huge 50 x 100 Ft Lot in desirable Smythe Park, backing on to a tranquil ravine and situated on a quiet, private, family-friendly court. Offering over 2,000 sq. ft. of Total Living Space. Currently configured as three spacious, self-contained units: 2nd Floor: 2-Bedroom with private in-suite laundry; Main Floor: 1-Bedroom + Den; Lower Level: 1-Bedroom unit. All units feature upgraded Kitchens and Bathrooms, have been freshly painted, and offer large sun-filled windows with excellent natural light. The main floor includes a rear entrance providing convenient access to the backyard, parking, and shared lower-level laundry (accessed via separate rear entrance). Rare Bonus Feature: A private Sauna, accessed through a separate rear entrance - perfect for wellness enthusiasts seeking comfort, relaxation, and year-round enjoyment. All three units are currently vacant, presenting an opportunity for first-time buyers to live-in one unit and rent the others or perfect for investors to rent all three units and set market rents. Easily converted to a single-family home with basement apartment with front and rear entrances. Extra-large private driveway accommodates up to 6 vehicles + rare oversized 400 sq. ft. double car garage (spray foam insulated) with potential for a future garden suite (buyer to verify). Prime location close to: Lambton Golf & Country Club, Humber River & Trails, Lambton Arena, Smythe Park, Loblaws, Summerhill Market, Starbucks, Walmart Supercentre, Stock Yards Village. TTC At Your Door - 1 Bus to Runnymede Subway Station, Bloor West & the Junction. Easy access to highways and all major Conveniences.
No extras listed.
| Type | Detached |
| Style | 2-Storey |
| Approx. Age | 51-99 |
| Size | 1100-1500 sq. ft. |
| Property Tax | $5,203 |
| Lot Size | 50.07 ft x 100.08 ft |
| mls© Number | W12829060 |
| Listed By | RE/MAX ULTIMATE REALTY INC. |
Listing History
- No recent sale history for this listing.
- No recent lease history for this listing.
Similar Sold Listings
- No similar listings found.
Similar Active Listings
- No similar listings found.