| Common Elements Included | |
| Building Insurance Included | |
| Water Included |
































































































575 Bloor Street E 908
North St. James Town, Toronto C08
$599,990
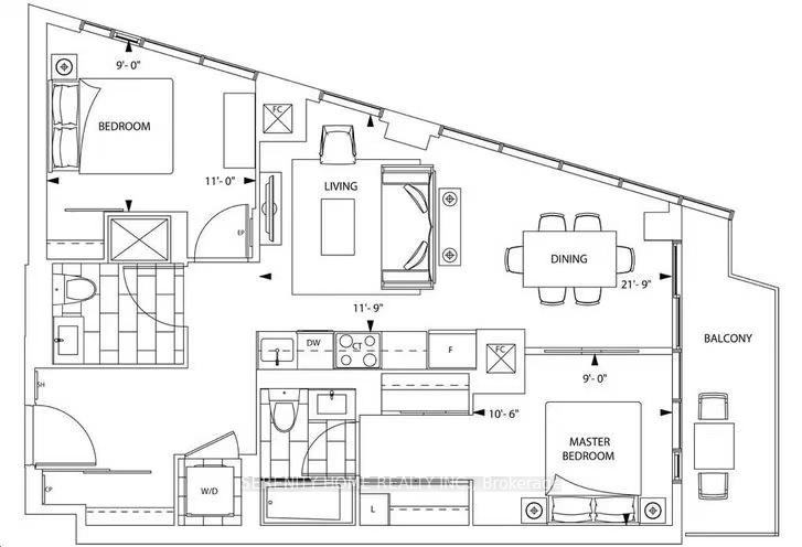
Spectacular south-west corner 2-bedroom, 2-bathroom +1 parking condo in Tridel's luxurious Via Bloor community. This bright and spacious (778sft+75sft balcony) suite offers an open-concept layout with floor-to-ceiling windows, abundant natural light, and a generous balcony with sunny exposure and city views. The modern kitchen features quartz countertops, premium finishes, and stainless-steel appliances. The well-appointed living and dining areas provide an ideal setting for both everyday living and entertaining. This suite includes one underground parking space. Residents enjoy an impressive selection of world-class amenities, including 24-hour concierge, fitness centre with sauna and hot tub, rooftop pool and BBQ terrace, party room, theatre room, and meeting rooms. The building also features advanced smart-connected systems, including secure automated parcel delivery, license plate recognition for visitor parking, and digital locks with app-based control for enhanced security and convenience.Prime downtown location, just a 3-minute walk to Sherbourne Subway Station and approximately a 5-minute drive to the Don Valley Parkway. Steps to the subway, restaurants, luxury shopping, parks, and everyday conveniences including the ground floor grocery store in the building. with quick access to Yonge-Bloor, downtown Toronto, and major transit routes. Rogers high speed internet is included in the maintenance fee. Please refer to the attached floor plan for the suite layout. The unit is always owner occupied, never be rented.
No extras listed.
| Type | Condo Apartment |
| Style | Apartment |
| Approx. Age | 0-5 |
| Size | 800-899 sq. ft. |
| Maintenance Fees | $748 |
| Locker | None |
| Balcony | Open |
| Exposure | South West |
| Parking Type | Underground |
| Parking Spaces | 1 |
| Parking Features | Underground |
| Property Tax | $4,185 |
| mls© Number | C13053518 |
| Listed By | SERENITY HOME REALTY INC. |
Listing History
- No recent sale history for this listing.
- No recent lease history for this listing.
Similar Sold Listings
- No similar listings found.
Similar Active Listings
- No similar listings found.